Developer Anthony LoRusso is hoping to double-down on the success of his new micro-apartment buildings on Buffalo’s Lower West Side, as he pursues a similar project on a vacant lot in North Buffalo’s Rebecca Park neighborhood east of Military Road.
Elmwood Forest, an affiliate of LoRusso’s APL Property Group, is proposing to construct a three-story apartment building on Clayton Street, with 66 small housing units and on-site parking.
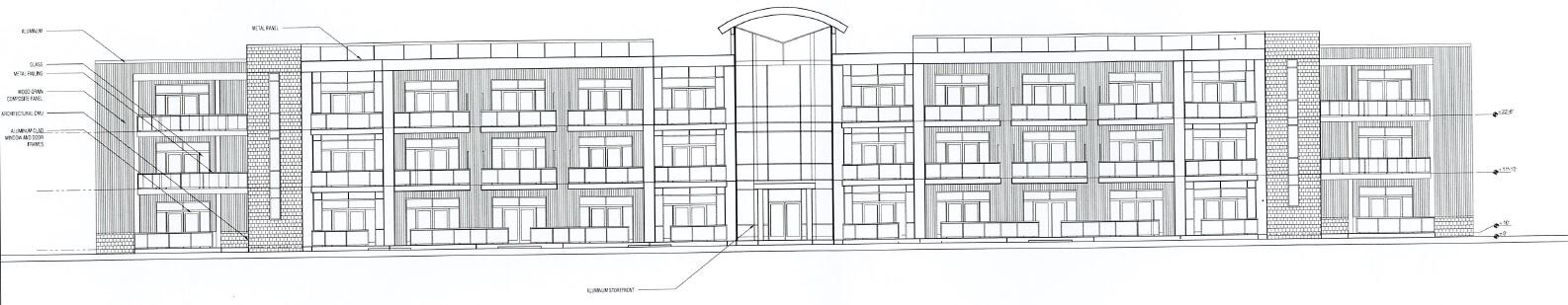
Plans by Stieglitz Snyder Architecture and LaBella Associates show the 85,000-square-foot building would consist of 22 small apartments and a lounge or lobby on each of the three floors, with the leasing office, community room, fitness center, laundry facilities, tenant storage and building storage in the basement. Each of the apartments would range in size from 450 to 550 square feet, with balconies.
That’s similar to what he did with the Allentown Apartments at Maryland Place at 295 Maryland and Campus West at 129 West Ave., with 107 units between them.
“The project is intended to provide high-quality workforce housing similar to the developer’s other projects in the city,” according to the application, submitted by attorney Marc A. Romanowski.
The $10 million building at 127 Clayton St. would feature a central glass atrium with an arched panel roof, and two identical wings on either side, each with a flat roof. The building facade would metal and wood-grain composite panels, architectural cement masonry units, aluminum-clad windows and door frames, metal balconies and abundant glass.
“The design team has proposed a modern and inviting design that will bring vibrancy to the neighborhood,” Romanowski wrote in a letter of intent. “Significant transparency levels, balconies and a grand entrance will make this a welcome addition to the neighborhood.”

Buffalo Planning Board
The Clayton Street Residence would be located on undeveloped land that LoRusso bought last July, between Ruhl and Kofler avenues, south of Hinman Avenue. Plans also include landscaping, sidewalks, drainage and a driveway on the north side off Clayton, directly across from Ruhl, that would lead behind the building to a 67-space parking lot.
“The significant frontage and landscaping will allow the project to have a park-like feel and will be setback similar to adjacent residences to maintain the existing neighborhood feel,” Romanowski wrote. And while it’s larger than surrounding homes, “it has been designed to fit,” and it would provide a buffer to adjacent industrial properties, he added.
LoRusso needed extra land to accommodate a larger, 67-space parking area than he could otherwise fit, so as part of the project, the developer is asking the Common Council to subdivide part of 2030 Elmwood Ave. – which he also owns separately – and combine that with the Clayton property, for a total of 1.78 acres.

Buffalo Planning Board
He also wants the city to rezone the combined site from single-family residential and light industrial to “district residential” to accommodate the higher density of the project that would not otherwise be permitted. Meanwhile, the rest of the Elmwood property is already slated for a solar farm that LoRusso is putting up – under Solar Solutions of Upstate NY – that will supply extra power to the new building.
Romanowski said LoRusso and his team have already met “a couple of times” with neighbors, whom he said were “supportive.”
“They toured Anthony’s facilities on West and Maryland, and liked the project,” the attorney said. “Their concerns were related to potential parking impacts from residents, which is why we have a parking field as big as we do behind it.”
Besides the Council, the proposal also requires a greenspace variance from the Zoning Board of Appeals, and site plan approval from the Buffalo Planning Board.
If it gets the green light, Romanowski said LoRusso wants to start work this summer, with construction taking about 18 months. The project is also potentially eligible for inclusion in the state Brownfield Cleanup Program, which would provide for tax credits.